• 상ㆍ하수도용배관
  • 상수도용
  • 이음관
  • PVC(본드식)

압력용 이음관

압력용 경질 폴리염화비닐 이음관

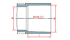
접합부 공통치수


단위(mm)

호칭
지름
d1 d2 1 / T l d (최소치)
16 22.40 ±0.20 1/34 30 16
20 26.45 ±0.20 1/34 35 20
25 32.55 ±0.25 1/34 40 25
30 38.60 ±0.25 1/34 44 31
35 42.30 ±0.30 1/35 50 35
40 48.70 ±0.30 1/37 55 40
50 60.80 ±0.30 1/37 63 51
65 76.80 ±0.30 1/41 69 66
75 89.80 ±0.30 1/43 72 77
100 115.00 ±0.35 1/44 92 100
125 141.20 ±0.40 1/45 112 123
150 166.50 ±0.50 1/45 140 146
200 217.90 ±0.60 1/50 150 194
250 269.10 ±0.60 1/50 170 240
300 319.15 ±0.70 1/50 185 286
400 401.50 ±0.80 1/50 208 390


엘보우(ELBOW)


단위(mm)

호칭
지름
16 20 25 30 35 40 50 65 75 100 125 150 200 250 300
D 29 33 40 46 51 57 70 87 101 129 158 185 238 285 350
t 3.5 3.5 4.0 4.0 4.5 4.5 5.0 5.5 6.0 7.5 8.0 8.0 8.0 10.0 11.0
H 43 50 58 65 70 82 96 112 127 158 192 227 273 290 340

비고 : H의 허용차 +5 / -1mm로 한다



소켓(SOCKET)


단위(mm)

호칭
지름
16 20 25 30 40 50 65 75 100 125 150 200 250 300 400
D 29 33 40 46 57 70 87 101 129 158 185 238 292 350 436
L 67 77 87 95 117 133 146 155 200 242 300 317 359 370 425

비고 : L의 허용차 : ±4mm



티이(TEE)


단위(mm)

호칭지름 D t (최소치) H D1 H1
16 29 3.5 48 29 43
20 33 3.5 50 33 50
25 40 4.0 58 40 58
30 46 4.0 65 46 65
35 51 4.5 70 51 70
40 57 4.5 82 57 82
50 70 5.0 96 70 96
65 87 5.5 110 87 110
75 101 6.0 120 101 120
100 129 7.5 152 129 152
125 158 8.0 187 158 187
150 185 8.0 230 185 230
200 238 8.0 281 238 294
20x16 33 3.5 48 29 45
25x16 40 4.0 53 29 48
25x20 40 4.0 55 33 53
30x16 46 4.0 57 29 51
30x25 46 4.0 62 40 61
40x16 57 4.5 68 29 57
40x25 57 4.5 73 40 67
40x30 57 4.5 76 46 71
50x16 70 5.0 76 29 63
50x20 70 5.0 78 33 68
50x25 70 5.0 81 40 73
50x30 70 5.0 84 46 77
50x40 70 5.0 90 57 88
75x50 101 6.0 105 70 110
100x50 129 7.5 125 70 122
100x75 129 7.5 160 101 132
150x50 185 8.0 180 70 145
150x100 185 8.0 208 129 186
200x50 238 8.0 281 70 180
200x75 238 8.0 281 101 195
200x100 238 8.0 281 129 212
200x150 238 8.0 281 185 260

비고 : H 및 H1의 허용차 +5 / -1mm로 한다.



이경소켓(REDUCER SOCKET)


단위(mm)

호칭지름 D D1 t t1 L
20x16 33 29 3.5 3.5 74
25x16 40 29 4.0 3.5 80
25x20 40 33 4.0 3.5 84
30x20 46 33 4.0 3.5 93
30x25 46 40 4.0 4.0 93
40x25 57 40 4.5 4.0 114
40x30 57 46 4.5 4.0 114
50x25 70 40 5.0 4.0 131
50x30 70 46 5.0 4.0 136
50x40 70 57 5.0 4.5 136
75x50 101 70 6.0 5.0 165
100x50 129 70 7.5 6.0 179
100x75 129 101 7.5 6.0 190
125x100 158 129 8.0 7.5 240
150x100 185 129 8.0 7.5 190
150x125 185 158 8.0 8.0 200
200x100 238 129 8.0 6.5 250
200x125 238 158 8.0 8.0 270
200x150 238 185 8.0 8.0 290

비고 : L의 허용차 +4mm로 한다.



밸브용 소켓(VALVE SOCKET)


단위(mm)

호칭지름 D 나사부 W L B
기본외경
D1
나사산수
(25.4mm)
기본외경
L1
L1
허용치
유효 나사부
길이 L2
16x1/2" 29 20.955 14 8.2 ±3.6 15 6 54 29
20x3/4" 33 26.441 14 9.5 ±3.6 17 8 64 33
25x1" 40 33.249 11 10.4 ±4.6 19 8 71 40
30x11/4" 46 41.910 11 12.7 ±4.6 22 10 80 46
40x11/2" 57 47.803 11 12.7 ±4.6 22 10 92 57
50x2" 70 59.614 11 15.9 ±4.6 26 12 106 70
65x21/2" 87 75.184 11 18.5 ±4.6 26 12 116 85
75x3" 101 87.884 11 20.6 ±4.6 34 16 128 101
100x4" 129 113.030 11 25.4 ±4.9 34 18 157 129

비고 : 1. H 및 H1의 허용차 +5 / -1mm로 한다.
 2. 나사부는 KS B 0222관용 테이퍼 나사로 한다.



45°엘보우(45°ELBOW)


단위(mm)

기호 호칭지름
50 75 100 125 150 200
D 70 101 129 158 185 238
t 5.0 6.0 7.5 8.0 8.0 8.0
H 80 96 121 192 227 273

비고 : H의 허용차 +5 / -1mm로 한다.



급수전용 엘보우(FAUCET ELBOW)


단위(mm)

호칭
지름
D I H D1 나사부 t1 t2 d1 D2 W L
기본나사의
지름 D1
나사산수
(25.4mm)
16 29 3.5 43 30 20.955 14 17 14 26 34 4 32
20 33 3.5 51 37 26.441 14 19 16 32 42 4 36
25 40 4.0 59 46 33.249 11 21 18 40 52 5 40

비고 : 1. 나사부는 KS B 0222의 평행 암나사로 한다.
 2. 나사부의 인서트 재질은 KS D 6002, 또는 KS D 5101로 한다.
 3. l2의 허용차 : ±1mm로 한다.
 4. H의 허용차 : +5 / -1mm로 한다.
 5. H1의 허용차 : +5 / -2mm로 한다.



급수전용 티이(FAUCET TEE)


단위(mm)

호칭
지름
D I H D1 나사부 t1 t2 d1 D2 W L
기본나사의
지름 D1
나사산수
(25.4mm)
16x16 29 3.5 43 30 20.955 14 17 14 26 34 4 32
20x20 33 3.5 51 37 26.441 14 19 16 32 42 4 36
25x25 40 4.0 59 46 33.249 11 21 18 40 52 5 40

비고 : 1. 나사부는 KS B 0222의 평행 암나사로 한다.
 2. 나사부의 인서트 재질은 KS D 6002, 또는 KS D 5101로 한다.
 3. l2의 허용차 : ±1mm로 한다.
 4. H의 허용차 : +5 / -1mm로 한다.
 5. H1의 허용차 : +5 / -2mm로 한다.



급수전용 소켓(FAUCET SOCKET)


단위(mm)

호칭
지름
D D1 나사부 l1 l2 d1 D2 W L
기본나사의
지름 D1
나사산수
(25.4mm)
16 29 30 20.955 14 17 14 26 34 4 52
20 33 37 26.441 14 19 16 32 42 4 59
25 40 46 33.249 11 21 18 40 52 5 68

비고 : 1. 나사부는 KS B 0222의 평행 암나사로 한다.
 2. 나사부의 인서트 재질은 KS D 6002, 또는 KS D 5101로 한다.
 3. l2의 허용차 : ±1mm로 한다.
 4. L의 허용차 : +5 / -1mm로 한다.



캡(TS-CAP)


단위(mm)

기호 호칭기호
16 20 25 30 40 50 75 100
D 29 33 40 46 57 70 101 129
t 3.5 3.5 4.0 4.0 4.5 5.0 6.0 7.5
L 33.5 38.5 44.0 48.0 59.5 68.0 105.0 138.0

비고 : 1. L의 허용차 +5 / 0mm로 한다.
 2. R은 1mm 이상으로 한다.



후렌지(FLANGE SOCKET)


단위(mm)

호칭
지름
d1 YT
테이퍼
d
10K
D
10K
l
10K
t
10K
t1
10K
ΦxΦ수 H
기본치수 허용차
40 48.60 ±0.30 1/37 40 138 54 5.5 17.5 19x4 61
50 60.80 ±0.30 1/37 51 152 62 6.0 21.5 19x4 71
65 77.20 ±0.30 1/41 67 173 70 6.0 23.5 20x4 78
75 89.80 ±0.30 1/43 81 183 70 7.0 24.0 19x8 81
100 115.00 ±0.35 1/44 100 206 94 7.5 24.0 19x8 101
125 141.20 ±0.40 1/45 126 246 106 8.0 26.0 23x8 118
150 166.50 ±0.50 1/45 147 280 133 10 28.5 23x8 148
200 218.30 ±0.50 1/50 197 328 138 10 30.5 23x12 151
250 269.80 ±0.60 1/50 247 395 152 12 30.5 23x12 151
300 319.15 ±0.70 1/50 296 441 152 13 32.5 25x16 167
400 401.50 ±0.80 1/50 396 561 221 17 37.0 27x16 232

비고 : 1. H의 허용차 +4mm로 한다.
 2. t1의 허용차 : ±1.5로 한다.